Estepona

Te koop Herenhuis Costa Del Sol Estepona € 469.000,-

Ref.no: RSOR5296366
Price: € 469.000,-

1-7980e48d732b6fc85c14b43b94d2aa54.jpg

Te koop Herenhuis Costa Del Sol Estepona € 469.000,-

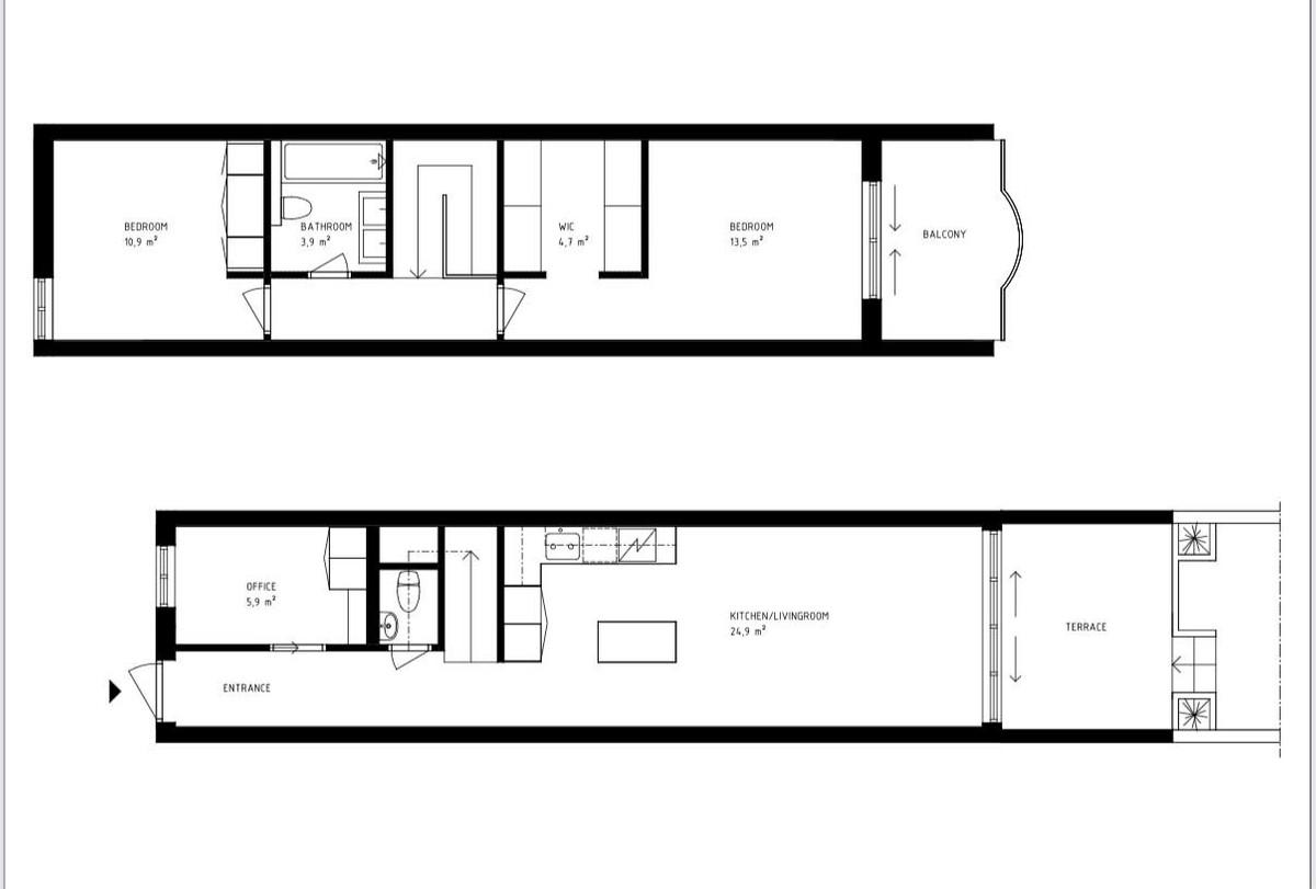
Bedrooms3
Salles de bains3
Living area95m²
Poolno
Gardenyes
Parkingyes
Built year1988
Instelling: dicht bij de haven, dicht bij winkels, dicht bij de zee, dicht bij de stad, dicht bij scholen
Orientatie: Zuid
Staat: uitstekend
Klimaatregeling: airconditioning
Uitzicht: zee
Kenmerken: Nabij vervoer, Berging
Keuken: keuken-woonkamer
Tuin: privé
Beveiliging: Gated Complex
Parkeren: gemeenschappelijk
Ref.no: RSOR5296366
Price: € 469.000,-

Plus d'information ›››
Te koop Herenhuis Costa Del Sol Estepona € 469.000,-

Charmante maison de ville entièrement rénovée, située dans le prestigieux quartier de Seghers, à deux pas du port d'Estepona et de Playa del Cristo. Un bien idéal comme résidence principale ou comme investissement sûr sur la Costa del Sol.

Cette propriété comprend 3 chambres et 2 salles de bains, et offre un agencement moderne et fonctionnel. La cuisine s'ouvre harmonieusement sur la salle à manger et le salon, créant un espace lumineux et décloisonné, à la fois accueillant et idéal pour le quotidien comme pour recevoir.

Elle comprend un jardin et une terrasse privés exposés plein sud avec vue sur la mer, idéaux pour profiter du soleil et de la lumière naturelle tout au long de la journée. Elle dispose également d'une mezzanine, d'une buanderie séparée et d'un cellier, offrant un confort supplémentaire et un espace de rangement pratique.

Un atout majeur est que la propriété possède une licence d'exploitation touristique, ce qui en fait une excellente opportunité d'investissement pour la location saisonnière et la location longue durée.

Située à seulement 200 mètres de la plage et à proximité d'un arrêt de bus, cette propriété offre un accès facile à tous les services, commerces et loisirs, sans avoir besoin de voiture. Le lotissement, entouré d'espaces verts, offre un cadre de vie paisible et bien entretenu, et dispose également de nombreuses places de parking extérieures.

Une excellente opportunité pour ceux qui souhaitent vivre près de la mer ou investir dans un quartier très recherché d'Estepona, offrant un fort potentiel locatif.

Ne ratez pas cette opportunité — contactez-nous pour plus d'informations ou pour organiser une visite.

Alternatives

BOHACP1457_5050_V1_F6D6.jpg

Te koop Herenhuis Costa Del Sol Estepona € 470.250,-

Price € 470.250,-
Plus d'information
BOHACP1315_3839_V1_D446.jpg

Te koop Herenhuis Costa Del Sol Manilva € 465.000,-

Price € 465.000,-
Plus d'information
BOHACP1231_3117_V1_FE07.jpg

Te koop Herenhuis Costa Del Sol Manilva € 483.000,-

Price € 483.000,-
Plus d'information
BOHACP1316_25939_V1_2C59.jpg

Te koop Herenhuis Costa Del Sol Mijas Costa € 556.000,-

Price € 556.000,-
Plus d'information
Disclaimer | Links
Casadelmar %lng_cookie_notice% %lng_close%
x