Torrequebrada

Te koop Penthouse Duplex Costa Del Sol Torrequebrada € 350.000,-

Ref.no: RSOR5306611
Price: € 350.000,-

1-7980e48d732b6fc85c14b43b94d2aa54.jpg

Te koop Penthouse Duplex Costa Del Sol Torrequebrada € 350.000,-

Bedrooms2
Salles de bains2
Living area78m²
Poolyes
Gardenno
Parkingyes
Built year2003
Instelling: dicht bij golf, dicht bij winkels, dicht bij zee, dicht bij de stad, dicht bij scholen, verstedelijking
Orientatie: Noord-West
Staat: goed
Zwembad: gemeenschappelijk
Klimaatregeling: centrale verwarming
Uitzicht: zee, bergen, panoramisch
Caractéristiques : Terrasse couverte, Ascenseur, Placards intégrés, Proximité des transports, Solarium, Wi-Fi, Salle de sport, Local de rangement, Sol en marbre, Double vitrage, Fibre optique
Meubels: optioneel
Keuken: volledig ingericht
Beveiliging: Gated Complex, Entry Phone
Parkeren: Ondergronds, Garage, overdekt, privé
Hulpprogramma's: elektriciteit, drinkwater
Categorie: Golf, Vakantiehuizen
Ref.no: RSOR5306611
Price: € 350.000,-

Plus d'information ›››
Te koop Penthouse Duplex Costa Del Sol Torrequebrada € 350.000,-

Nous vous présentons ce bien unique situé dans le quartier du centre commercial de Torrequebrada.

Le principal atout de cette maison est l'absence de voisins au-dessus et en dessous (appartement/maison de ville), offrant une tranquillité absolue.

Mise en page et points saillants :

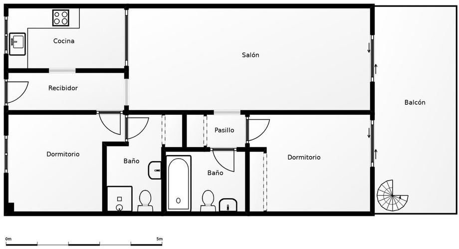
Rez-de-chaussée (60 m²) : Un espace accueillant et fonctionnel comprenant 2 chambres et 2 salles de bains. Le séjour/salle à manger donne directement sur une terrasse de 13 m², lieu idéal pour prendre le petit-déjeuner avec vue sur les montagnes.

Le joyau de la couronne – Solarium de 55 m² : accessible par un escalier en colimaçon depuis la terrasse principale, cet immense espace ouvert offre une vue spectaculaire sur la mer et la montagne. C’est le lieu idéal pour aménager une pergola, un coin barbecue ou un espace détente de rêve.

Des atouts qui font la différence : la propriété comprend une place de parking et un local de rangement dans le même immeuble.

Espaces communs : Adoptez un mode de vie sain grâce à une salle de sport entièrement équipée et une piscine commune.

Situation : Situé dans le quartier prisé de Torrequebrada, cet appartement se trouve à seulement 400 mètres de la plage. Centre commercial, supermarchés, pharmacies et restaurants sont tous accessibles à pied, alliant ainsi la tranquillité d’un quartier résidentiel à la proximité de toutes les commodités.

Alternatives

1-7980e48d732b6fc85c14b43b94d2aa54.jpg

Te koop Penthouse Duplex Costa Del Sol La Duquesa € 368.000,-

Price € 368.000,-
Plus d'information
1-7980e48d732b6fc85c14b43b94d2aa54.jpg

Te koop Penthouse Costa Del Sol Calahonda € 330.000,-

Price € 330.000,-
Plus d'information
1-7980e48d732b6fc85c14b43b94d2aa54.jpg

Te koop Penthouse Costa Del Sol Manilva € 327.000,-

Price € 327.000,-
Plus d'information
1-7980e48d732b6fc85c14b43b94d2aa54.jpg

Te koop Penthouse Costa Del Sol Fuengirola € 350.000,-

Price € 350.000,-
Plus d'information
Disclaimer | Links
Casadelmar %lng_cookie_notice% %lng_close%
x