Cancelada

Te koop Herenhuis Costa Del Sol Cancelada € 585.000,-

Ref.no: RSOR5225539
Price: € 585.000,-

1-7980e48d732b6fc85c14b43b94d2aa54.jpg

Te koop Herenhuis Costa Del Sol Cancelada € 585.000,-

Bedrooms4
Salles de bains3
Superficie du terrain182m²
Poolno
Gardenno
Parkingno
Built year2020
Ref.no: RSOR5225539
Price: € 585.000,-

Plus d'information ›››
Te koop Herenhuis Costa Del Sol Cancelada € 585.000,-

Maison de ville contemporaine avec des équipements exceptionnels à Cancelada

Située dans l'un des quartiers résidentiels sécurisés les plus modernes de Cancelada, cette élégante maison de ville offre un mélange raffiné de confort, de design et d'art de vivre. Avec pour toile de fond des vues panoramiques sur les montagnes et, depuis le premier étage, une vue imprenable sur la Méditerranée et la côte marocaine, le cadre est à la fois serein et inspirant.

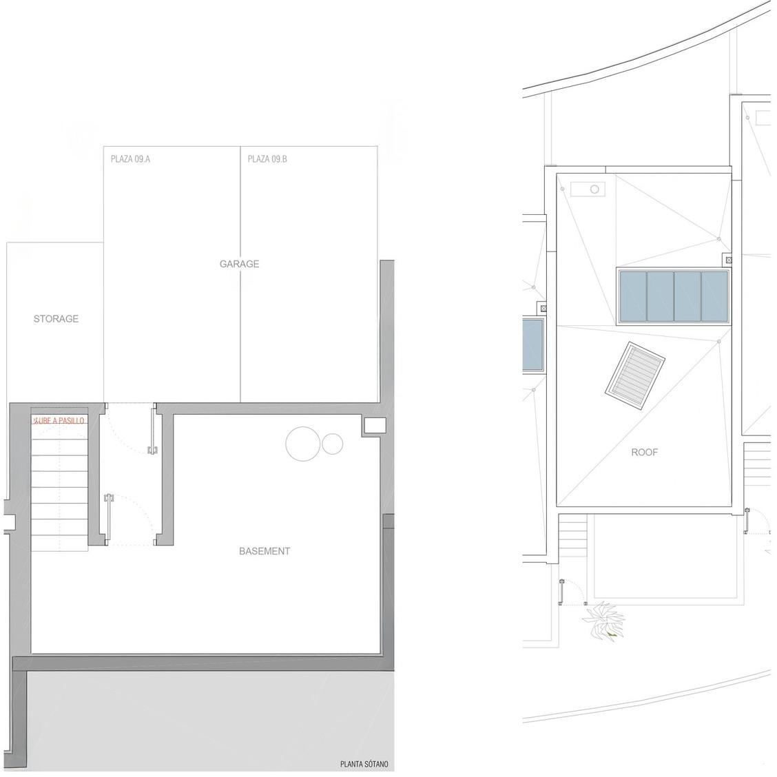
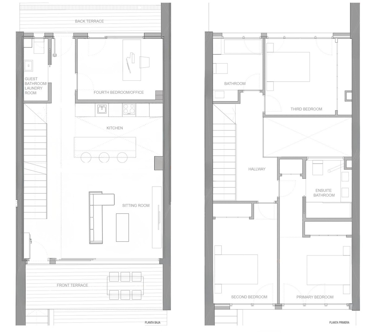
Cette propriété se déploie sur trois niveaux et offre des espaces de vie lumineux et ouverts, baignés de lumière naturelle. Le rez-de-chaussée comprend une cuisine contemporaine agrémentée d'un puits de lumière, s'ouvrant sur un vaste séjour/salle à manger avec accès direct à des terrasses privatives. Avec quatre chambres et trois salles de bains, toutes éclairées par la lumière naturelle, la maison est idéale pour les familles, les invités ou les personnes recherchant un espace de travail supplémentaire. Un sous-sol polyvalent et spacieux communique directement avec le parking souterrain, offrant ainsi plus de flexibilité et de praticité.

Les résidents bénéficient d'une gamme exceptionnelle d'équipements privés au sein du club-house exclusif de la résidence. On y trouve notamment une grande piscine extérieure, une piscine intérieure chauffée, une salle de sport entièrement équipée, un sauna et de magnifiques jardins entretenus. Le club-house abrite également son propre restaurant et un espace sur le toit réservé aux résidents.

Parmi les autres atouts, citons deux places de parking souterraines privatives et un local de rangement, pour un quotidien plus pratique.

Située à seulement six minutes de la plage et à quelques minutes en voiture d'Estepona, de San Pedro, de Puerto Banús et de Marbella, la propriété offre un accès facile aux commerces, aux restaurants et aux services essentiels, mettant ainsi le meilleur du New Golden Mile à portée de main.

Cette maison de ville représente une excellente opportunité pour ceux qui recherchent une habitation moderne avec des équipements communs exceptionnels, que ce soit comme résidence principale, résidence secondaire ou investissement.

Alternatives

1-7980e48d732b6fc85c14b43b94d2aa54.jpg

Te koop Herenhuis Costa Del Sol La Capellania € 565.000,-

Price € 565.000,-
Plus d'information
1-7980e48d732b6fc85c14b43b94d2aa54.jpg

Te koop Herenhuis Costa Del Sol Torrox € 490.000,-

Price € 490.000,-
Plus d'information
1-7980e48d732b6fc85c14b43b94d2aa54.jpg

Te koop Herenhuis Costa Del Sol Riviera Del Sol € 625.000,-

Price € 625.000,-
Plus d'information
1-7980e48d732b6fc85c14b43b94d2aa54.jpg

Te koop Herenhuis Costa Del Sol Marbella € 560.000,-

Price € 560.000,-
Plus d'information
Disclaimer | Links
Casadelmar %lng_cookie_notice% %lng_close%
x